Teatro del Mondo en la Bienal de Venecia 1979 | Aldo Rossi | Planta + sección + axonometría + dibujos
El arquitecto italiano Aldo Rossi realizó el Teatro del Mondo (Teatro del Mundo), una construcción flotante de carácter temporal que albergaba en su interior un teatro para un aforo de 250 personas, con motivo de la Bienal de Arquitectura y Teatro de Venecia del año 1979. El leitmotiv del proyecto consistía en evocar la tradición de los teatros flotantes de la Venecia del siglo XVIII, muy populares durante la época de los carnavales.
Inaugurado oficialmente el 11 de noviembre de 1979, el edificio fue construido en los astilleros de Fusina, para posteriormente ser trasladado mediante remolcador hasta Venecia. Su llegada a la ciudad por vía marítima desprendió un halo de misterio, que lo fue acompañando a lo largo del recorrido por los principales canales de la ciudad, hasta atracar en Punta della Dogana, donde permaneció hasta la conclusión de la bienal.
Si hay una ciudad donde este proyecto flotante tiene su plena justificación, sin lugar a dudas esa ciudad es Venecia, la capital de las urbes levantadas sobre el agua. No solamente por la semejanza de la volumetría del Teatro con el monumento veneciano, sino también porque el Teatro se levanta sobre una embarcación de madera, con una lógica constructiva similar a la de la góndola, el medio de transporte más representativo de Venecia.
Una obra singular a medio camino entre edificio y nave. Una arquitectura que a pesar de contener un espacio preciso en su interior, en este caso un teatro, no dispone de un lugar fijo sobre el que asentarse. Una obra efímera que aparece en medio del agua. A diferencia del templo, que destaca por la solidez de sus materiales y su perdurabilidad, il Teatro del Mondo se concibe a partir de su condición de arquitectura efímera. En coherencia con esta provisionalidad, la construcción se planteó en los astilleros en base a una estructura ligera, ensamblada como si se tratara de una embarcación ligera, a modo de balsa. Los materiales empleados fueron principalmente perfiles tubulares de acero para conformar el armazón estructural y revestimiento de madera tanto para el interior como para el exterior.
El conjunto tenía una altura de 25 metros, y estaba conformado por un cubo en la parte inferior de 9,5 metros de lado por 11 de alto, el cual soportaba un octágono de 6 metros de altura. Siguiendo el lenguaje arquitectónico característico de la obra de Aldo Rossi, los volúmenes que componen Il Teatro del Mondo destacan por una evidente simplicidad formal. Sin embargo, este empleo deliberado de formas elementales tiene su razón de ser en la búsqueda de una arquitectura simple en apariencia, pero que a su vez resulte compleja en cuanto a contenido y significado. En este sentido Rossi realiza una aproximación tipológica a la arquitectura mediante arquetipos fácilmente reconocibles para el usuario, como pueden ser el cubo, el prisma o el cilindro. Es una abstracción que tiene como fin último restablecer una conexión entre el proyecto y la memoria colectiva. En el caso de Il Teatro del Mondo, como ya se ha apuntado, con el ideal arquitectónico del monumento veneciano.
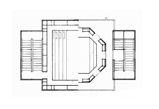
La tipología teatral propuesta definía un escenario central con graderías dispuestas a ambos lados, que podía transformarse en una escena frontal o en una de isabelina. En los pisos se situaban tres galerías, la última de las cuales daba acceso a una terraza con vistas a la ciudad de Venecia. El teatro fue diseñado para un aforo óptimo de 250 personas, aunque en determinadas ocasiones éste fue superado. Las ventanas se disponían de tal modo que convertían Venecia en el telón de fondo del espectáculo, ampliando virtualmente la profundidad del espacio escénico.
Una de las principales virtudes de Il Teatro del Mondo es la sensación de ambigüedad que produce en el espectador. Su apariencia, fruto de la simbiosis entre un edificio clásico y una embarcación, corrobora esta percepción. Il Teatro del Mondo expone los planteamientos teóricos de Rossi, fundamentados principalmente en la relación existente entre la arquitectura, el contexto urbano e histórico en que se desarrolla y la memoria colectiva que subyace en los ciudadanos que la utilizan.







































